Väldisponerad villa i högt och fritt läge

Välkommen till denna charmiga, välplanerade och högt belägna 2-plans familjevilla om totalt 184 kvm på en friköpt och lättskött tomt om 660 kvm, belägen i det idylliska och omtyckta villaområdet Nockebyhov med direkt närhet till Judarnskogens naturreservat. Läget är svårslaget med optimalt solläge på en lugn och barnvänlig gata och tomten angränsar till allmänning vilket ger både fri vy och insynsskydd. Här erbjuds ett hem med genomtänkta ytor och funktioner som skapar en bekväm och harmonisk vardag för hela familjen, samtidigt som många charmiga originaldetaljer bevarats såsom blyinfattade fönster, kassettak, gedigna elementskydd, vacker fiskbensparkett och 2-glas fönster.

Huset rymmer generösa sällskapsytor och ett stort kök med matplats. Från matsalen finns utgång till en rymlig altan med direkt access till den lättskötta, barnvänliga trädgården. De stora fönsterpartierna i vardagsrummet och matsalen släpper in ett fantastiskt ljus. På det välplanerade övre planet finns en möblerbar hall, tre bra sovrum och ett stilrent badrum. Master bedroom har utgång till en altan - en perfekt plats för avkoppling. I källarplanet finns ett rum som kan nyttjas som arbetsrum eller gästrum. Här finns även en tvättstuga, matkällare, goda förvaringsmöjligheter samt ett stort garage. Trädgården, där man njuter av solen från morgon till kväll, inbjuder till både lek, umgänge och långa sommarkvällar med grill och avkoppling. Villan är utrustad med bergvärme för effektiv uppvärmning.

Judarnskogen erbjuder härliga promenadstråk året runt och vintertid lockar Judarnsjön med skridskoåkning. I närområdet finns även badklippor längs Mälaren, populära Ängbybadet med sandstrand samt fina löp- och promenadstigar på Kärsön och vid Drottningholm. På bekvämt promenadavstånd finns lekpark, förskolor, skolor och butiker. Kommunikationerna är utmärkta med bussar, tunnelbana och 12:ans spårvagn i närheten, liksom Nockeby torg och Brommaplan som erbjuder all service för en smidig vardag.

Varmt välkommen till Skällnoravägen 14 – ett hem att trivas i under många år framöver!

Skällnoravägen 14

Område:
Bromma - Nockebyhov
Ägandeform:
Friköpt
Rum:
7 rok
Boarea:
125 kvm
Biarea:
59 kvm
Tomtarea:
661 kvm
Pris:
Pris på förfrågan
Beskrivning

Fakta

Allmänt

Adress:
Skällnoravägen 14, 16839 Bromma
Ort/stadsdel:
Bromma - Nockebyhov
Taxeringskod
220, Småhusenhet, bebyggd
Tomtarea:
661 kvm
Upplåtelseform:
Friköpt
Boarea:
125 kvm
Uppmätningsnorm SS 021054-2020
Biarea:
59 kvm
Antal rum
7 rum och kök, varav 3–4 sovrum
Taxeringsvärde:
9 862 000 kr (fastställt avseende år 2024), varav byggnadsvärde 2 862 000 kr

Huvudbyggnad

Byggnadstyp
2-plans villa med källare
Byggnadsår
1934
Fasad
Träpanel
Stomme
Trä
Fönster
2-glas kopplade fönster
Bjälklag
Trä
Grundmur
Betong, betonghålsten
Tak
Tegelpannor
Grund
Grundsulor med mellangjutna betonggolv
Vatten/avlopp
Kommunalt vatten, Kommunalt avlopp.
TV- och internetanslutning
Bredband: Fiber.

Energi

Uppvärmning
Bergvärme
Ventilation
Självdrag
Energideklarationsdatum
2026-01-23
Energiprestanda primärtenergital
82 kWh/m2 och år
Energiklass
C

Driftkostnader

Hushållsel
25 724 kr/år
Vatten/avlopp
4 583 kr/år
Renhållning
3 155 kr/år
Försäkring
6 777 kr/år
Summa
40 239 kr/år
(fastighetsavgift/skatt på 10 425 kr tillkommer)
Elkostnad är inklusive värme och hushållsel. Förbrukning 11 555 kWh/år. Baserat på 2 personer i hushållet. Larm ingår inte i driftskostnaden. Kostnad 7 144 kr (Verisure).
2024
Impregnering av tjärpapp altan övre plan
Ny trätrall altan övre plan

2023/2024
Ommålning fönster utvändigt mot söder

2018
Målning fasad, grund, räcken och fönster (utvändigt och mellan)

2013
Renovering (nytt) kök

2009
Målning vardagsrum och matsal
Läggning av klinker i källarplan
Målning av väggar och trappa källarplan

2008
Installation bergvärme
Tapetsering övre plan
Läggning av nya golv i tre sovrum
Slipning ekparkett övre plan och trappa

2006
Nytt badrum övre plan

2004
Målning fasad
Nytt tak

1995
Tätning av rökkanal
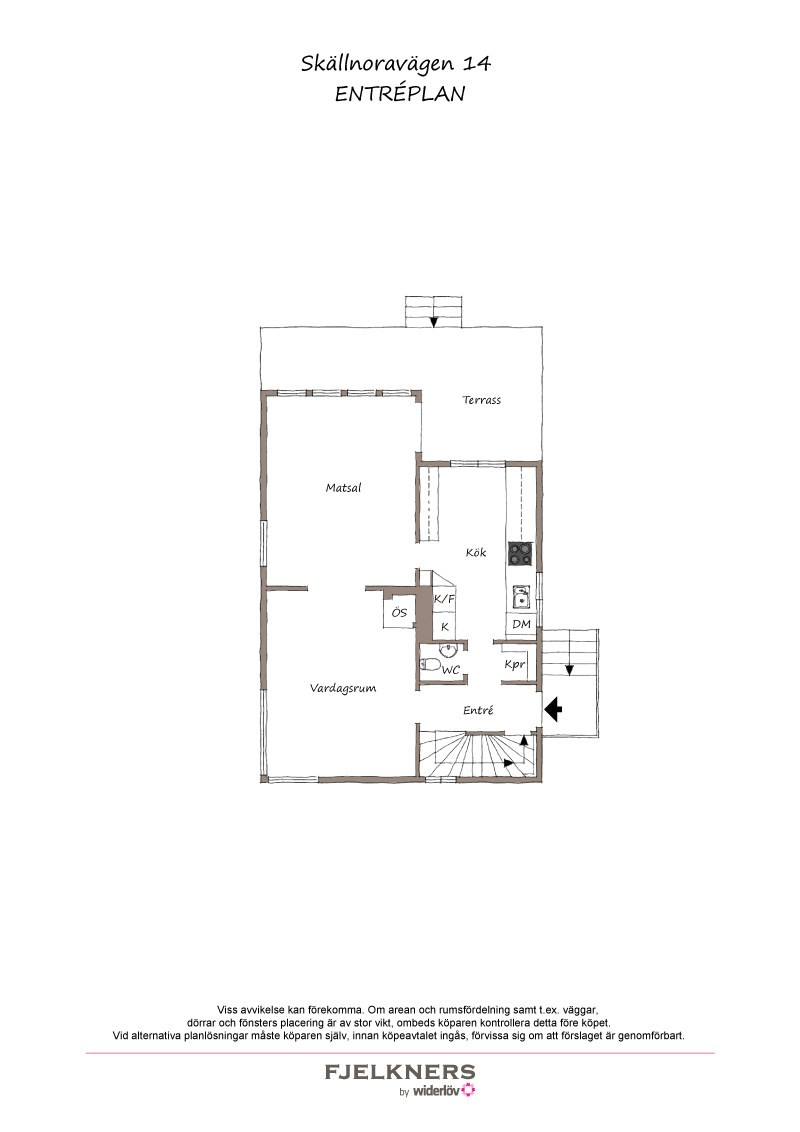
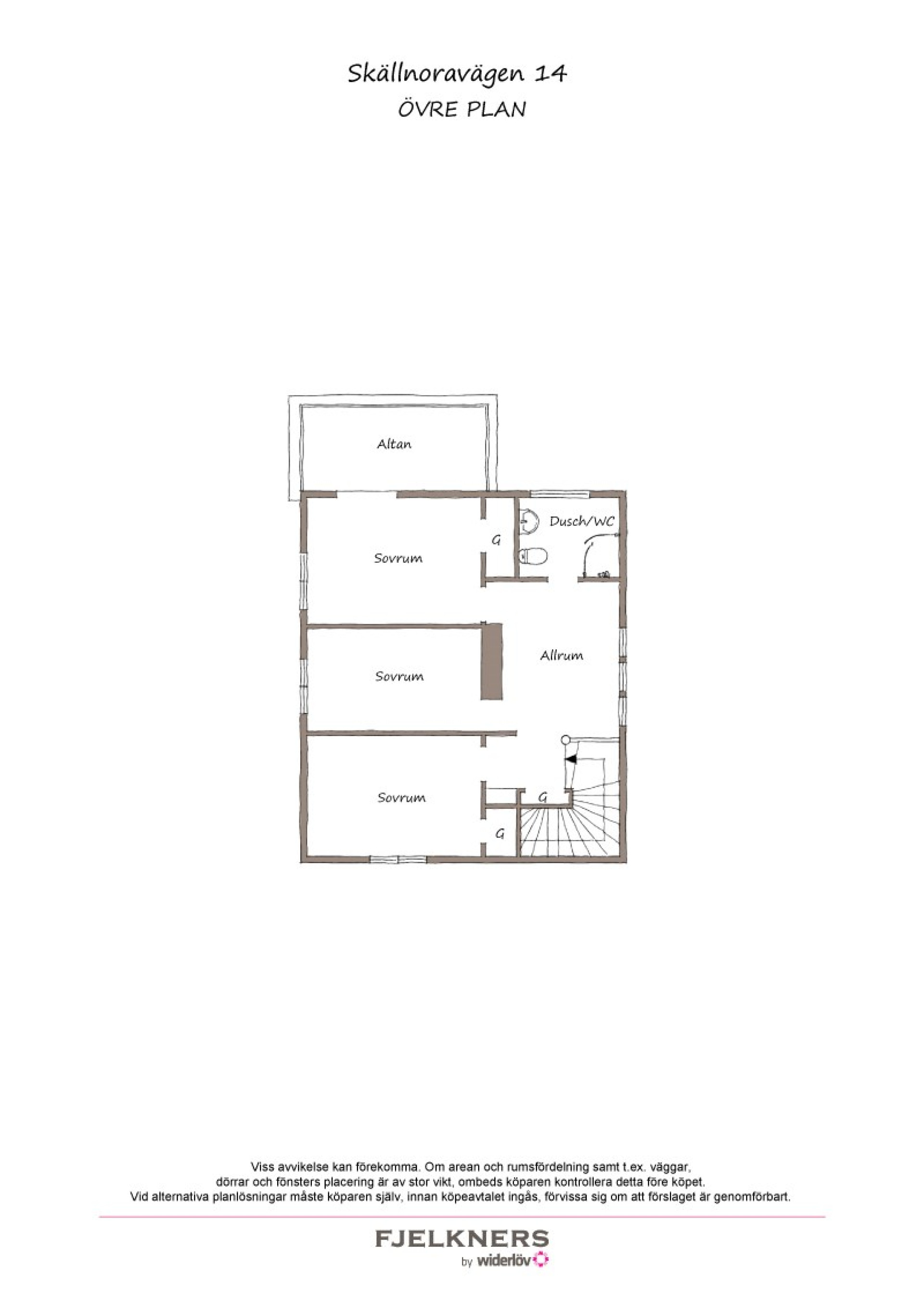
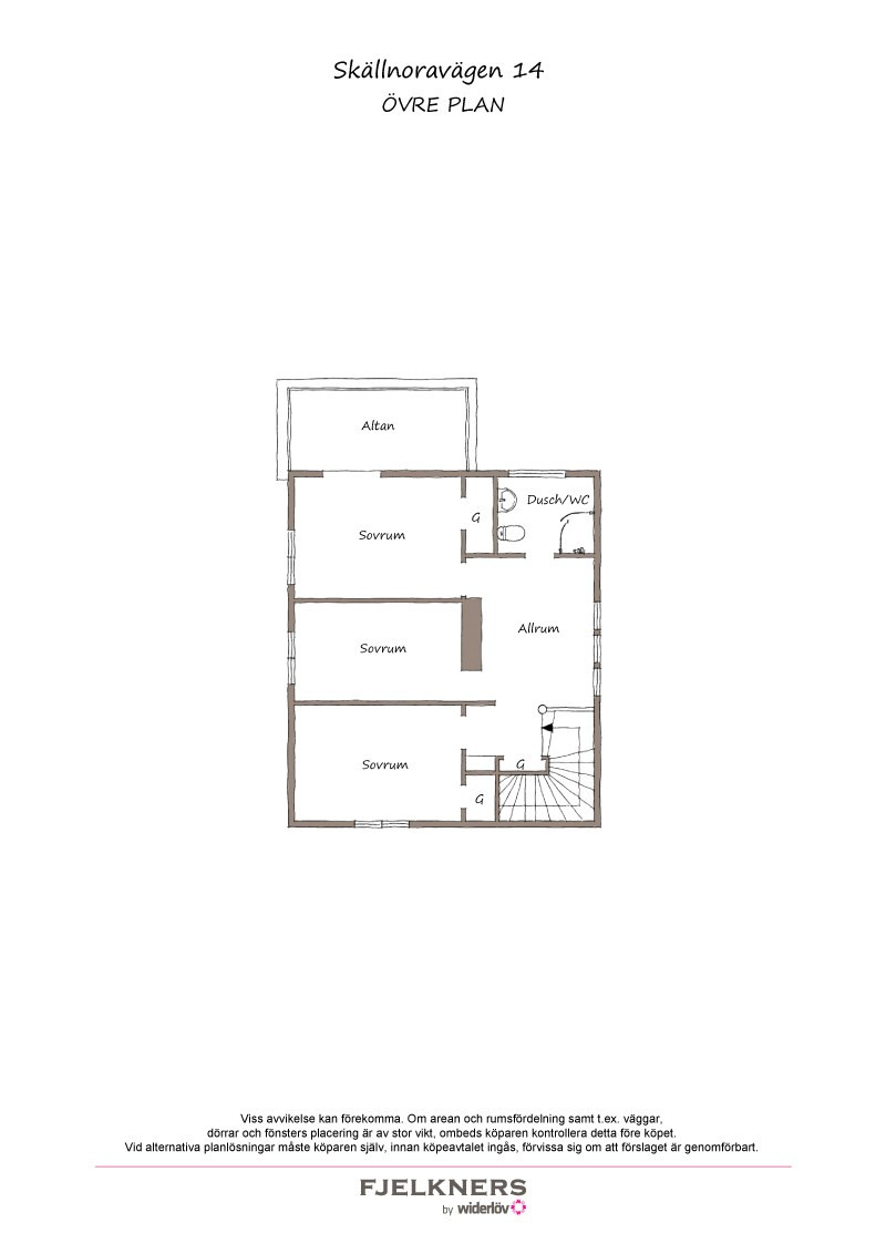
Planlösning

Planlösning

Planritningar
Planritningar
Planritningar
Karta
Område

Områdesbeskrivning

Området är mycket barnvänligt med lekparker och härliga grönområden och naturreservat inpå knuten. Närheten till Mälaren, kommunikationer, service, skola och förskola gör detta boende mycket trivsamt.

Nockebyhov
Mer fakta om bostaden

Allmänt

Adress:
Skällnoravägen 14, 16839 Bromma
Ort/stadsdel:
Bromma - Nockebyhov
Taxeringskod
220, Småhusenhet, bebyggd
Tomtarea:
661 kvm
Upplåtelseform:
Friköpt
Boarea:
125 kvm
Uppmätningsnorm SS 021054-2020
Biarea:
59 kvm
Antal rum
7 rum och kök, varav 3–4 sovrum
Taxeringsvärde:
9 862 000 kr (fastställt avseende år 2024), varav byggnadsvärde 2 862 000 kr

Huvudbyggnad

Byggnadstyp
2-plans villa med källare
Byggnadsår
1934
Fasad
Träpanel
Stomme
Trä
Fönster
2-glas kopplade fönster
Bjälklag
Trä
Grundmur
Betong, betonghålsten
Tak
Tegelpannor
Grund
Grundsulor med mellangjutna betonggolv
Vatten/avlopp
Kommunalt vatten, Kommunalt avlopp.
TV- och internetanslutning
Bredband: Fiber.
Energi och drift

Energi

Uppvärmning
Bergvärme
Ventilation
Självdrag
Energideklarationsdatum
2026-01-23
Energiprestanda primärtenergital
82 kWh/m2 och år
Energiklass
C

Driftkostnader

Hushållsel
25 724 kr/år
Vatten/avlopp
4 583 kr/år
Renhållning
3 155 kr/år
Försäkring
6 777 kr/år
Summa
40 239 kr/år
(fastighetsavgift/skatt på 10 425 kr tillkommer)
Elkostnad är inklusive värme och hushållsel. Förbrukning 11 555 kWh/år. Baserat på 2 personer i hushållet. Larm ingår inte i driftskostnaden. Kostnad 7 144 kr (Verisure).
Renoveringar - bostaden
2024
Impregnering av tjärpapp altan övre plan
Ny trätrall altan övre plan

2023/2024
Ommålning fönster utvändigt mot söder

2018
Målning fasad, grund, räcken och fönster (utvändigt och mellan)

2013
Renovering (nytt) kök

2009
Målning vardagsrum och matsal
Läggning av klinker i källarplan
Målning av väggar och trappa källarplan

2008
Installation bergvärme
Tapetsering övre plan
Läggning av nya golv i tre sovrum
Slipning ekparkett övre plan och trappa

2006
Nytt badrum övre plan

2004
Målning fasad
Nytt tak

1995
Tätning av rökkanal
Planlösning

Planlösning

Planritningar
Planritningar
Planritningar
Karta
Område

Områdesbeskrivning

Området är mycket barnvänligt med lekparker och härliga grönområden och naturreservat inpå knuten. Närheten till Mälaren, kommunikationer, service, skola och förskola gör detta boende mycket trivsamt.

Nockebyhov
 Skällnoravägen 14  Skällnoravägen 14  Skällnoravägen 14  Skällnoravägen 14  Skällnoravägen 14  Skällnoravägen 14  Skällnoravägen 14  Skällnoravägen 14  Skällnoravägen 14  Skällnoravägen 14  Skällnoravägen 14  Skällnoravägen 14  Skällnoravägen 14  Skällnoravägen 14  Skällnoravägen 14  Skällnoravägen 14  Skällnoravägen 14  Skällnoravägen 14  Skällnoravägen 14  Skällnoravägen 14  Skällnoravägen 14  Skällnoravägen 14  Skällnoravägen 14  Skällnoravägen 14  Skällnoravägen 14  Skällnoravägen 14  Skällnoravägen 14  Skällnoravägen 14  Skällnoravägen 14  Skällnoravägen 14  Skällnoravägen 14  Skällnoravägen 14  Skällnoravägen 14  Skällnoravägen 14  Skällnoravägen 14  Skällnoravägen 14  Skällnoravägen 14  Skällnoravägen 14  Skällnoravägen 14  Skällnoravägen 14  Skällnoravägen 14  Skällnoravägen 14  Skällnoravägen 14  Skällnoravägen 14  Skällnoravägen 14  Skällnoravägen 14  Skällnoravägen 14  Skällnoravägen 14  Skällnoravägen 14  Skällnoravägen 14  Skällnoravägen 14  Skällnoravägen 14  Skällnoravägen 14  Skällnoravägen 14  Skällnoravägen 14  Skällnoravägen 14  Skällnoravägen 14 Välkommen till Skällnoravägen 14! Skällnoravägen 14
Välkommen till Skällnoravägen 14!
 Skällnoravägen 14  Skällnoravägen 14  Skällnoravägen 14  Skällnoravägen 14 Garpes Skällnoravägen 14
Garpes
Blomsteraffär bredvid Garpes Skällnoravägen 14
Blomsteraffär bredvid Garpes
Vattenlinjen längs Nockebyhov Skällnoravägen 14
Vattenlinjen längs Nockebyhov
Åkeshovs BP Skällnoravägen 14
Åkeshovs BP
Nockebyhovskolan Skällnoravägen 14
Nockebyhovskolan
Nockebyhovskolan Skällnoravägen 14
Nockebyhovskolan